| @ | ![]() |
GOroGOro 1floor | |||||||||||||||
| @ |
|
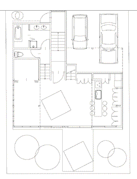
ƒAƒvƒ[ƒ`F–k–ʂ̌ºŠÖ‚ÍA“Vˆä‚ɃKƒ‰ƒX‚ª1–ʂɒ£‚ç‚ê‘å‹ó‚ðŠ´‚¶‚邱‚Æ‚ª‚Å‚«‚éB ‹ŠÔF”²‚¯‚ɂȂÁ‚Ä‹·‚³‚ðŠ´‚¶‚ç‚ê‚È‚¢‚悤‚É‚µAGOroGOroCar‚ªˆÚ“®‚Å‚«‚éƒXƒy[ƒX‚ðŽæ‚Á‚Ä‚¢‚éB ƒLƒbƒ`ƒ“FƒRƒ“ƒpƒN‚ƂɎû‚ß‚ÄA‚»‚Ì•ª‚ðŽû”[ƒXƒy[ƒX‚ðŠm•Û‚µ‚Ä‚¢‚éB ƒeƒ‰ƒXFGOroGOroCa‚’‚ªAŠO‚É‚à‚¾‚¹‚ê‚邿‚¤‚É‚e‚kiƒtƒƒA\jƒŒƒxƒ‹‚𓯂¶‚É‚µ‚Ä‚ ‚éB ƒgƒCƒŒ¥—ŽºF“¹˜H–ʂƓ¯‚¶ƒŒƒxƒ‹‚Ȃ̂ŋŠÔ‚̃Œƒxƒ‹‚æ‚è1‚l‰º‚ª‚Á‚Ä‚¢‚邱‚Æ‚Å—Žº‚âô–ÊAƒgƒCƒŒ‚Ì“Vˆä‚܂ł̂‚³‚ð‘å‚«‚‚Ƃ邱‚Æ‚ª‚Å‚«LX‚Æ‚µ‚Ä‚¢‚éB |
|||||||||||||||
| @ | @ | @ | @ | ||||||||||||||
| @ |
Abiko city K-house mtop>GOroGOroCar>1Fplan>2Fplan>Roof>Photon |
||||||||||||||||
| @ | @ | @ | @ | ||||||||||||||
@
@
@
@
@
@
@
@
@
@
@
@
@
@
@
@
@
@
@
@
@
@
@
@
@
@
@
b‚²ˆÓŒ©A‚²Š´‘zbGriffin
Architects homepage |
(—L)GriffinArchitects@ƒTƒCƒgŠÇ—